3 Executive Hampton, New Brunswick E5N5J7, Hampton , E5N5J7
Listing ID: NB131067
Share
$589,000
Price
5
Bed
3
Bath
3,220
Sq. Ft.
Built: 2025
Data last updated: December 20, 2025 at 07:16am
Quick Access
Photos
Video
Map

Property Description

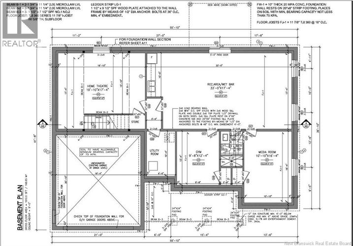
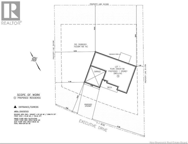
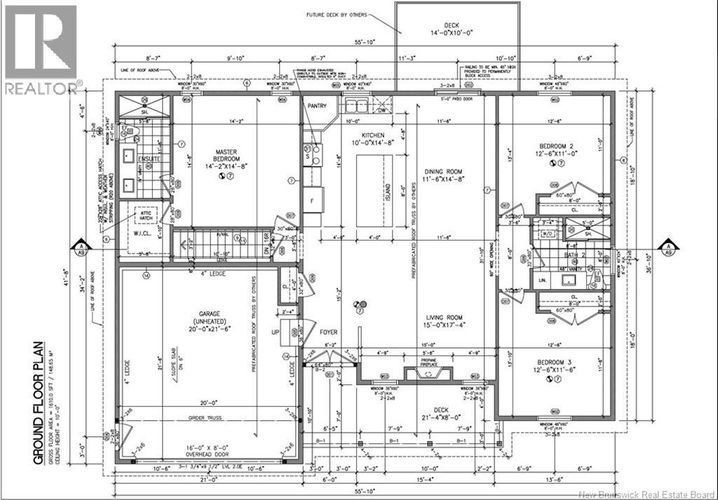
Beautiful new construction in the heart of Hampton, offering modern style, quality craftsmanship, and great flexibility for todays families. With the foundation and framing complete, the home will be ready in a few months, and early buyers may still select some finishes. The main level features approx. over 1,600 sq. ft. of bright, open-concept living with 10 ft ceilings, engineered hardwood floors, a stylish fireplace, and a modern kitchen with quartz countertops, walk-in pantry, and sleek cabinetry. The layout includes a spacious primary bedroom with walk-in closet and ensuite, plus two additional bedrooms and a full bath, ideal for families or those seeking one-level living. The fully finished lower level adds another approx. over 1,600 sq. ft. with 9 ft ceilings, including two bedrooms (one non-conforming), a large rec room, and a finished walkout in-law suite with its own bathroom and kitchenette, perfect for extended family or potential rental income. A two-car garage, paved driveway, quality exterior finishes, and a 10-Year Atlantic Home Warranty complete this impressive package. A rare chance to own a thoughtfully designed new home in one of Hamptons most welcoming communities. All measurements to be verified by the buyer. HST rebate to be assigned to the builder. (id:26452)

Other located at 3 Executive Hampton, New Brunswick E5N5J7. It has 5 beds, 3 bathrooms, and is 3220 square feet. The property was built in 2025. 3 Executive Hampton, New Brunswick E5N5J7 is in the Hampton neighborhood.
Show More keyboard_arrow_down


Agent Contact: Shabahat Shakeel Phone: +15066541506
Listing Courtesy of: EXIT REALTY SPECIALISTS
Source: crea , MLS#: NB131067

close
SS
Shabahat Shakeel
(506) 654-1506

Here to help with your Real Estate inquiries

SS
Shabahat Shakeel
(506) 654-1506
chat
Message
By sharing this listing, you have agreed with roomvu's terms and conditions of usage
$3,703.37
Monthly
$878,400
Total Mortgage
$219,600
Down Payment